
一、工作原理
手(電)動反沖排污式過濾器主要由殼體、濾網、手動蝶閥等組成。正常工作時,過濾器內部手動蝶閥處于全開狀態,被過濾介質經過濾網后流出,渣物等被截留在過濾器濾網內(此時排污口所接閥門關閉)。當系統壓差增大需進行排污操作時,關閉過濾器下游出口閥門,再關閉過濾器內部手動蝶閥,介質經特殊設計的導流孔,直接進入凈液室。此時,打開底部排污閥門,在濾網的內外兩側就形成一定的壓力差,迫使介質從濾網外側反向沖洗濾網,將污物排出過濾器,完成一個工作循環。
二、規格型號及技術參數
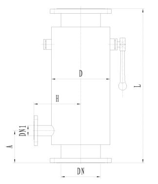
1、直通式(HLDC-□PZ)

| 型號 | 進出口 直徑DN (mm) |
最大處 理流量 m3/h |
L (mm) |
H (mm) |
A (mm) |
D (mm) |
排污口 DN1 (mm) |
| HLDC-25PZ | 25 | 5.3 | 700 | 160 | 150 | 159 | 25 |
| HLDC-40PZ | 40 | 13.6 | 700 | 160 | 150 | 159 | 25 |
| HLDC-50PZ | 50 | 21.5 | 740 | 160 | 150 | 159 | 25 |
| HLDC-65PZ | 65 | 36.0 | 740 | 160 | 150 | 159 | 32 |
| HLDC-80PZ | 80 | 54.0 | 760 | 160 | 150 | 159 | 32 |
| HLDC-100PZ | 100 | 84.5 | 780 | 190 | 173 | 219 | 40 |
| HLDC-125PZ | 125 | 132 | 800 | 190 | 173 | 219 | 40 |
| HLDC-150PZ | 150 | 192 | 820 | 230 | 194 | 273 | 50 |
| HLDC-200PZ | 200 | 337 | 850 | 260 | 278 | 325 | 50 |
| HLDC-250PZ | 250 | 528 | 950 | 300 | 303 | 377 | 65 |
| HLDC-300PZ | 300 | 760 | 1060 | 320 | 330 | 426 | 65 |
| HLDC-350PZ | 350 | 1035 | 1180 | 360 | 365 | 500 | 80 |
| HLDC-400PZ | 400 | 1351 | 1150 | 400 | 430 | 550 | 80 |
| HLDC-450PZ | 450 | 1711 | 1380 | 440 | 455 | 630 | 100 |
| HLDC-500PZ | 500 | 2112 | 1560 | 500 | 560 | 750 | 100 |
| HLDC-600PZ | 600 | 3041 | 1700 | 530 | 680 | 800 | 125 |
| HLDC-700PZ | 700 | 4140 | 1900 | 580 | 820 | 900 | 150 |
| HLDC-800PZ | 800 | 5406 | 2200 | 640 | 980 | 1000 | 200 |
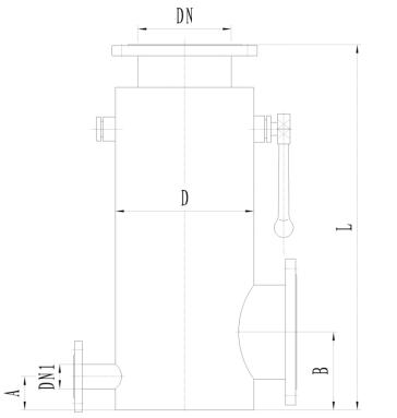
2、角通式(HLDC-□PJ)

| 型號 | 進出口 直徑DN (mm) |
最大處 理流量 m3/h |
L (mm) |
A (mm) |
B (mm) |
H (mm) |
D (mm) |
排污口 DN1 (mm) |
| HLDC-25PJ | 25 | 5.3 | 880 | 138 | 208 | 220 | 159 | 25 |
| HLDC-40PJ | 40 | 13.6 | 960 | 138 | 218 | 220 | 159 | 25 |
| HLDC-50PJ | 50 | 21.5 | 1000 | 148 | 233 | 220 | 159 | 32 |
| HLDC-65PJ | 65 | 36.0 | 1040 | 148 | 243 | 220 | 159 | 40 |
| HLDC-80PJ | 80 | 54.0 | 1060 | 153 | 253 | 220 | 159 | 40 |
| HLDC-100PJ | 100 | 84.5 | 1080 | 163 | 268 | 220 | 194 | 50 |
| HLDC-125PJ | 125 | 132 | 1100 | 163 | 283 | 220 | 219 | 65 |
| HLDC-150PJ | 150 | 192 | 1180 | 165 | 307 | 246 | 245 | 80 |
| HLDC-200PJ | 200 | 337 | 1250 | 185 | 360 | 282 | 273 | 80 |
| HLDC-250PJ | 250 | 528 | 1300 | 185 | 390 | 282 | 325 | 80 |
| HLDC-300PJ | 300 | 760 | 1360 | 195 | 435 | 333 | 426 | 100 |
| HLDC-350PJ | 350 | 1035 | 1450 | 195 | 450 | 360 | 480 | 125 |
| HLDC-400PJ | 400 | 1351 | 1520 | 210 | 525 | 400 | 530 | 150 |
| HLDC-450PJ | 450 | 1711 | 1580 | 210 | 540 | 410 | 560 | 150 |
| HLDC-500PJ | 500 | 2112 | 1660 | 220 | 600 | 480 | 700 | 150 |
| HLDC-600PJ | 600 | 3041 | 1780 | 230 | 680 | 530 | 800 | 200 |
| HLDC-700PJ | 700 | 4140 | 1950 | 240 | 740 | 630 | 940 | 200 |
| HLDC-800PJ | 800 | 5406 | 2300 | 240 | 800 | 630 | 1000 | 200 |




